Lodówka Whirlpool SP40802 EU – gwarancja świeżości Twoich posiłków
Jeśli jeszcze nie podjąłeś decyzji, którą lodówkę wybrać, to nadszedł najwyższy czas, by zastanowić się właśnie nad tym modelem. Poniżej znajdziesz recenzję Whirlpool SP40802 EU. Przeczytaj ją, a zobaczysz, że wybór Twojej lodówki będzie prostszy, niż Ci się wydaje.
Na początku warto zapoznać się z danymi technicznymi, by dowiedzieć się, czy produkt spełni Twoje oczekiwania i potrzeby. Jest to jedna z najlepszych lodówek do zabudowy, o czym przeczytasz w akapicie dotyczącym opinii użytkowników lodówki Whirlpool SP40 802 EU.
Lodówka Whirlpool SP40802 EU – poznaj jej dane techniczne
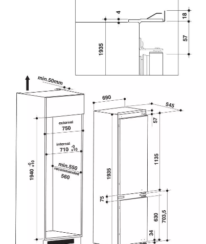
Lodówka Whirlpool ma 69 centymetrów szerokości, 193.5 centymetra wysokości oraz 54,5 centymetra głębokości. Pojemność chłodziarki wynosi aż 299 litrów, a zamrażarki 101 litrów, co pozwoli Ci schować do środka naprawdę wiele produktów. Nie będziesz musiał martwić się o ilość przechowywanej żywności. Koniec z upychaniem. Po zakupach będziesz mógł umieścić wszystko na 6 półkach w lodówce i 3 szufladach w zamrażarce.
Lodówka charakteryzuje się klasą energetyczną A++. Jej roczne zużycie energii wynosi 258 kWh, co pozwala na dużą oszczędność. Poziom hałasu urządzenia wynosi 35 dB, co oznacza cichą pracę, która nie będzie Ci przeszkadzać.
Przeczytaj kolejną część recenzji lodówki Whirlpool SP40 802 EU, a dowiesz się jeszcze więcej o jej mocnych stronach.
Lodówka Whirlpool SP40 802 EU – poznaj jej zalety
Czy słyszałeś kiedyś o lodówce, która ma niezwykłą funkcję o nazwie ”wakacje”? Lodówka Whirlpool SP40 802 EU właśnie taką posiada. Dzięki temu tryb pracy chłodziarki zmienia się podczas dłuższej nieobecności, co zapobiega powstawaniu nieprzyjemnych zapachów w środku urządzenia. Kiedy ta funkcja jest uruchomiona, spada również zużycie energii, co pozwala na znaczną oszczędność.
Dodatkowo w lodówce zastosowano technologię Stop Frost, czyli system błyskawicznego rozmrażania zamrażarki. Wystarczy wyjąć tacę, opłukać ją wodą i gotowe. Szronu i lodu nie ma w ciągu zaledwie kilku minut.
Lodówka Whirlpool SP40 802 EU wyposażona została również w alarm otwartych drzwi. Jest to praktyczna funkcja, która przypomina o konieczności zamknięcia drzwi lodówki jeśli będą otwarte dłużej niż kilka sekund.
Lodówka Whirlpool SP40 802 EU – opinie
Możesz kupić lodówkę i dołączyć do grona zadowolonych użytkowników. Urządzenie zachwalane jest przede wszystkim za swoją rewelacyjną pojemność. Dlaczego jest to ogromny atut? Ponieważ w lodówkach do zabudowy pojemność nierzadko stanowi problem. Wybierając lodówkę Whirlpool SP40 802 EU będziesz mógł ją zabudować i cieszyć się odpowiednią przestrzenią na swoją żywność. Pomogą Ci w tym również funkcjonalne szuflady, które zachwyciły innych użytkowników. Wybierz bezpieczeństwo, klasę i elegancję.













